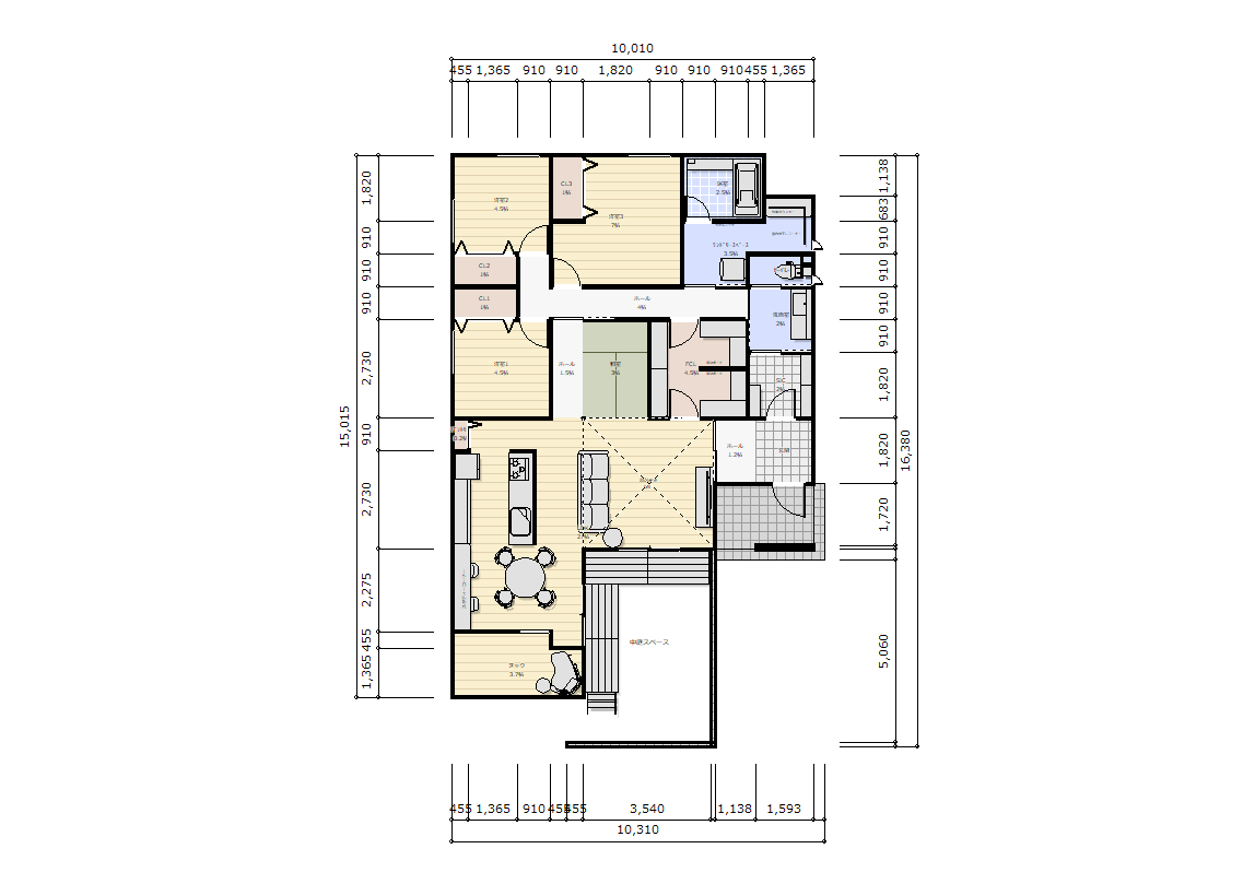
家づくりの打合せでは、お客様の暮らし方やご要望から、さまざまな間取りが生まれます。
本ページでは、実際のご提案プランを解説なしで図面そのままご紹介。
図面を眺めながら、
「この動線ならどんな暮らしができるだろう」
「自分の生活に置き換えるとどうなるだろう」
と、理想の住まいを思い描きつつご覧下さい。

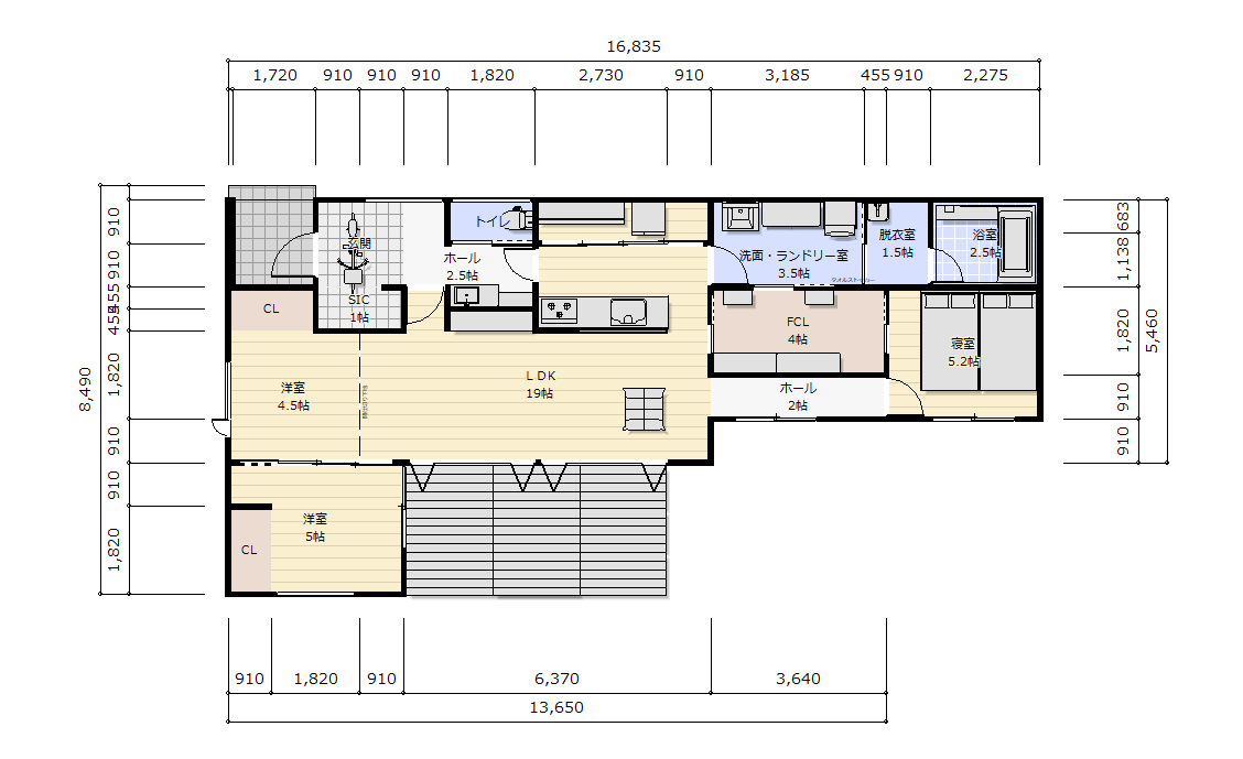
施工面積:90.26㎡27.30坪
床面積:87.15㎡/26.36坪
打合せから生まれた間取り 平屋/26.36坪3LDK+FCL
監修者
池田 恵子
ファミリア株式会社 取締役
略歴
- アトリエファイ建築研究所
(建設・現場監理に従事。) - 池田林業株式会社
(設計・現場監理に従事。後に取締役に就任し現在に至る。)
資格
- 二級建築士
- 既存住宅状況調査技術者
- 給水装置工事主任技術者
- 排水設備主任技術者
- いばらき地域文化財専門技術者



